$700,000
$775,000
9.7%For more information regarding the value of a property, please contact us for a free consultation.
425 Westboro Dr Nashville, TN 37209
0.76 Acres Lot
Key Details
Sold Price $700,000
Property Type Vacant Land
Listing Status Sold
Purchase Type For Sale
Subdivision Westboro
MLS Listing ID 2776124
Sold Date 06/27/25
HOA Y/N No
Lot Size 0.760 Acres
Acres 0.76
Property Description
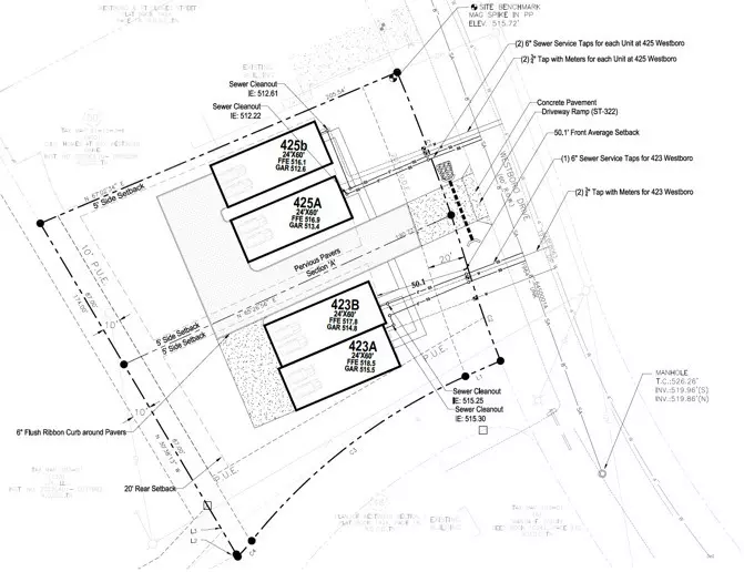
Great 4 Home Project With Plans Ready! Build 4 Homes Of Approximately 2,974 sf. and 2,990 sf.; 4 Bedrooms, 3.5 Baths, Bonus Room, 2 Car Garages, Roof Top Decks and More! New Home Sales Comparable to Recent Sales at 603 & 605 Westboro Drive, which closed 5/29/24 and 5/10/24 for $1,050,000 for 2,962 sf and $1,050,000 for 2,826 sf respectively. Builders Will Love This Project! Site Plans from Dale & Assoc. and Home Plans From Will Jenner Are Included With The Sale. Lot Has Already Been Subdivided Into 425 & 423 Westboro Drive, (see attached documents). This 4 Home Project Is An Opportunity To Build Two 2 Home HPRs! HPR Documents Are Ready, See Attached. Please Call Ron Jones, 615-944-9779, With Any Questions.
Location
State TN
County Davidson County
Zoning R8
Interior
Fireplace N
Exterior
Utilities Available Water Available
View Y/N false
Private Pool false
Building
Lot Description Cleared, Level
Sewer Public Sewer
Water Public
Schools
Elementary Schools Charlotte Park Elementary
Middle Schools H. G. Hill Middle
High Schools James Lawson High School
Others
Special Listing Condition Standard
Read Less
Want to know what your home might be worth? Contact us for a FREE valuation!

Our team is ready to help you sell your home for the highest possible price ASAP

© 2025 Listings courtesy of RealTrac as distributed by MLS GRID. All Rights Reserved.
